| 產品描述 | 技術參數 | 包裝參數 | 技術文檔 | |||
|
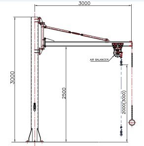
KBJ型氣動平衡吊基本介紹 【產品名稱】KBJ型氣動平衡吊 【產品品牌】韓國KHC 【產品規格】60-490kg 【產品保質】保質12個月 【是否現貨】暫無現貨,可訂貨 【產品目錄】氣動平衡吊 【典型應用】KBJ型氣動平衡吊適合用于貨物提升和下降
KBJ型氣動平衡吊圖片
KBJ型氣動平衡吊優勢 ●KBJ型氣動平衡吊控制方便,可360°旋轉,速度可調 ●KBJ型氣動平衡吊由立柱和懸臂吊組成,可以實現重物在2340mm范圍內的工作 ●KBJ型氣動平衡吊具有提升和懸浮功能,可以旋轉作業,精密調整 ●KBJ型氣動平衡吊可以重復性工作,效率高 |
||||||
|
相關產品
|









