| 產品描述 | 技術參數 | 包裝參數 | 技術文檔 | |||||
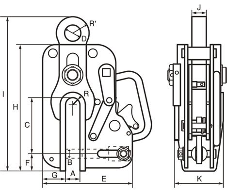
【產品名稱】LSC型鷹牌建筑工程用夾鉗,鷹牌LSC型遙控操縱式鉤環 【產品品牌】日本鷹牌·EAGLE CLAMP 【產品規格】載荷3噸-5噸 【產品配件】可單獨訂購 【產品保質】保質期12個月 【工作適用溫度】-30~300℃ 【用途】尤為適合建筑作業、遠距離操作,包括:豎吊、搬運、拔出、組裝、安裝、建設作業 【適用鋼材】鋼骨、鋼梁、鋼鐵構造、鋼矢板等
●LSC型鷹牌建筑工程用夾鉗采用耐裂紋的高抗拉強度鋼材本體,使用壽命長,附帶10米的鋼索; ●LSC型建筑工程用夾鉗基于限位器和鏈接鎖定的可靠雙重鎖定系統,具備5倍安全系數; ●遠程操作式:通過拉伸電線(2根)進行鎖定開放; ●鷹牌LSC型遙控操縱式鉤環可利用構件上開的吊孔進行吊起;可確認吊銷鎖定的杠桿直連工作機構。
鷹牌LSC型遙控操縱式鉤環使用案例圖 |
||||||||
|
相關產品
|










