| 產品描述 | 技術參數 | 包裝參數 | 技術文檔 | |||
|
半電動液壓小吊車簡介 【產品名稱】半電動液壓小吊車 【產品品牌】龍升品牌 【產品規格】550kg 【產品保質】保質一年 【是否現貨】現貨供應 【產品來源】液壓小吊車 【典型應用】半電動液壓小吊車適用于生產車間、吊運工裝夾具等吊裝模具或工件等
半電動液壓小吊車質保 龍升半電動液壓小吊車屬于煙臺開發區龍海起重工具有限公司旗下品牌產品,產品保質周期為12個月(易損件除外),在產品保質周期內正常使用的情況下出現的質量問題,我公司可提供免費維修、免費更換配件、如因質量問題維修或更換配件仍然不能達到正常使用,可免費更換主機(產品附件以及易損件除外)由此產生的運輸,維修費用由我公司承擔。非質量問題我公司將收費處理,所產生的運輸、維修等費用由客戶承擔。 注意:不論產品出現上述那種問題,客戶需要提供清楚的故障視頻以及產品故障圖片,并說明使用方式。 半電動液壓小吊車簡介特點 ●半電動液壓小吊車采用重載型設計,雙作用油缸,操作簡單 ●半電動液壓小吊車省去了前支腿,使用范圍廣 ●半電動液壓小吊車配有高品質泵站和免維修電池,提高工作效率 ●半電動液壓小吊車設計有五個懸臂位置,可以手動調節 ●半電動液壓小吊車配有鍛造重載可旋轉吊鉤,吊鉤上有彈性鎖扣
半電動液壓小吊車實物圖片
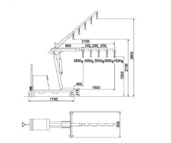
半電動液壓小吊車圖片
半電動液壓小吊車注意事項 ●需在平整且堅硬的地面工作,在松軟地面有側翻的可能 ●起吊工作時不得超過額定載荷 ●懸臂在延伸時,載荷會變小,本體上的標簽有清楚的標明每個懸臂位置的載重量,不可超載使用 ●起吊前檢查懸臂是否已通過固定銷固定住,載荷是否平衡穩定,并且載荷的重心是在吊鉤的下方 ●吊鉤和載荷下方不允許站人 ●在移動過程中,載物不可晃動或下降 ●半電動液壓小吊車不能作為運輸或移動的工具,如果須移動,在之前盡可能降低載荷和懸臂高度 ●半電動液壓小吊車不可長時間懸吊重物,每次作業完,要及時卸載
半電動液壓小吊車相關產品:
|
||||||
|
相關產品
|










