- 首頁
- > 鋼絲繩電動起重工具
- > 固定式鋼絲繩電動葫蘆
| 產品描述 | 技術參數 | 包裝參數 | 技術文檔 | |||
|
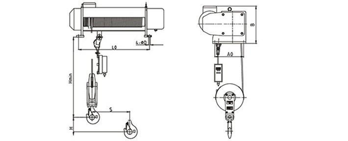
【產品名稱】SHA型固定式鋼絲繩電動葫蘆 【產品品牌】龍升 【產品規格】1.6T | 2.5T | 6.3T 【產品保質】電器部分6個月,機械部分12個月 【是否現貨】現貨供應 【典型應用】適用于工廠、貨場、碼頭、電廠、建筑工地等場所,特別適合廠房或使用場地的凈空高度受到限制,可用來提高有效起升高度 【產品質?!?/span> 龍升牌SHA型固定式鋼絲繩電動葫蘆屬于煙臺開發區龍海起重工具有限公司旗下品牌產品,產品保質周期為電器部分6個月,機械部分12個月,在產品保質周期內正常使用的情況下出現的質量問題,我公司可提供免費維修、免費更換配件、如因質量問題維修或更換配件仍然不能達到正常使用,可免費更換主機(產品附件以及易損件除外)由此產生的運輸,維修費用由我公司承擔。非質量問題我公司將收費處理,所產生的運輸、維修等費用由客戶承擔。 注意:不論產品出現上述那種問題,客戶需要提供清楚的故障視頻以及產品故障圖片,并說明使用方式。 【產品優勢】 ● 方形外觀,模塊化設計,易安裝,維修保養簡單; ● 選材優,各零部件精密加工,結構緊湊; ● 改進傳動布置方式,傳動平穩噪音小; ● 可選用進口電機,工作級別高,可達M5,噪音低; ● 吊鉤閉鎖裝置,有效防止重物滑落,保障安全; |
||||||
|
相關產品
|
|
|



